Description
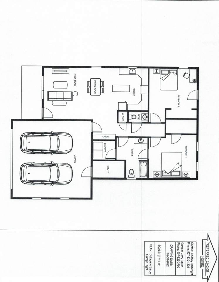
TO BE BUILT! Gove acres is a new 55 plus community development. This will be a 2 bedroom, 2 bath, home! No basements to be concerned with. Double attached garage. You will walk into an open concept living, dining and kitchen setting. The 2 bedrooms are in the back of the townhome. The main bedroom has a walk-in closet. You will also find 1.5 baths and a separate laundry room. The utility room is accessed from the garage. Enjoy the great outdoor on your covered patio and a back deck. Personalize your home with a great finishing options to choose from! Available to you will be a community Clubhouse for special events or just a friendly game of cards. The Windom hospital walking path is also close by. RELAX with all the comforts of living in a planned community with neighbors 55 plus, all yard maintenance taken care of by property management and a wonderful clubhouse provides an entertainment area for you to use for groups small or large.
-
2BEDS
-
0.13ACRES
-
1BATHS
-
11/2 BATHS
-
1,246SQFT
-
$225$/SQFT
Listing courtesy of Five Star Realty Pros LLC.Description
TO BE BUILT! Gove acres is a new 55 plus community development. This will be a 2 bedroom, 2 bath, home! No basements to be concerned with. Double attached garage. You will walk into an open concept living, dining and kitchen setting. The 2 bedrooms are in the back of the townhome. The main bedroom has a walk-in closet. You will also find 1.5 baths and a separate laundry room. The utility room is accessed from the garage. Enjoy the great outdoor on your covered patio and a back deck. Personalize your home with a great finishing options to choose from! Available to you will be a community Clubhouse for special events or just a friendly game of cards. The Windom hospital walking path is also close by. RELAX with all the comforts of living in a planned community with neighbors 55 plus, all yard maintenance taken care of by property management and a wonderful clubhouse provides an entertainment area for you to use for groups small or large.
Related Properties
IDX data © 2026 Regional Multiple Listing Service of Minnesota, Inc. All rights reserved. The data relating to real estate for sale on this web site comes in part from the Broker Reciprocity℠ Program of the Regional Multiple Listing Service of Minnesota, Inc. Real estate listings held by brokerage firms other than Keller Williams Preferred Realty are marked with the Broker Reciprocity℠ logo or the Broker Reciprocity℠ thumbnail logo (a little black house) and detailed information about them includes the name of the listing brokers. Keller Williams Preferred Realty is not a Multiple Listing Service, nor does it offer MLS access. This website is a service of Keller Williams Preferred Realty, a broker Participant of the Regional Multiple Listing Service of Minnesota, Inc. Information deemed reliable but not guaranteed. By viewing the listings on this site, you are agreeing to abide by the RMLS End-User License Agreement. Data last updated 2026-01-17T10:22:50.197.
Click here for Digital Millennium Copyright Act
